Logo Passei Direto
Buscar

Ferramentas de estudo

Questões resolvidas

Uma coluna engastada e livre composta pelo perfil CS 450 x 188, de aço AR 350 (fy = 350 MPa; fu = 450 MPa; E = 200 GPa), está sujeita a esforços permanentes de cálculo: compressão N = 300 kN e carregamento distribuído de 70 kN/m.
Verificar a segurança da coluna, sabendo-se que não há contenção lateral contínua e que o comprimento da coluna é de 4,00 m.

Material
páginas com resultados encontrados.
páginas com resultados encontrados.
details

Libere esse material sem enrolação!

Craque NetoCraque Neto

Ao continuar, você aceita os Termos de Uso e Política de Privacidade

details

Libere esse material sem enrolação!

Craque NetoCraque Neto

Ao continuar, você aceita os Termos de Uso e Política de Privacidade

details

Libere esse material sem enrolação!

Craque NetoCraque Neto

Ao continuar, você aceita os Termos de Uso e Política de Privacidade

Questões resolvidas

Uma coluna engastada e livre composta pelo perfil CS 450 x 188, de aço AR 350 (fy = 350 MPa; fu = 450 MPa; E = 200 GPa), está sujeita a esforços permanentes de cálculo: compressão N = 300 kN e carregamento distribuído de 70 kN/m.
Verificar a segurança da coluna, sabendo-se que não há contenção lateral contínua e que o comprimento da coluna é de 4,00 m.

Prévia do material em texto

CCE0182 – ESTRUTURAS DE AÇO – LISTA DE EXERCÍCIOS RESOLVIDOS 02 
ASSUNTO: UNIDADE 4 – DIMENSIONAMENTO E VERIFICAÇÃO DE ELEMENTOS 
ESTRUTURAIS SUBMETIDOS A FLEXÃO: VIGAS – COLUNA. 
 
Página 1 de 3 
 
1a QUESTÃO: 
Uma coluna com 9,00 m de altura, com contenção lateral e apoios articulados em torno dos eixos principais 
(x e y), está sujeita na extremidade superior a uma carga axial de compressão de cálculo NSd = 2.550 kN e a 
carga uniformemente distribuída de cálculo gSd = 4,5 kN/m. Nessas condições, verificar se um perfil CS 400 
x 248 suporta a aplicação das cargas referidas, utilizando-se do aço MR 250. 
Dados do perfil: 
A = 316 cm2; h = 400 mm; Alma (t0 = 19 mm; h0 = 337 mm); Mesa (tf = 31,5 mm; bf = 400 mm); Eixo x-x 
(Ix = 91.817 cm
4; Wx = 4.591 cm
3; ix = 17,05 cm; Zx = 5.183 cm
3); Eixo y-y (Iy = 33.619 cm
4; Wy = 1.681 
cm3; iy = 10,31 cm); J = 911 cm
4; Cw = 11.412.999 cm
6; K = 2,00. 
 
RESPOSTA: 
𝐍𝐒𝐝
𝐍𝐝𝐫𝐞𝐬
+
𝐌𝐒𝐝
𝐌𝐝𝐫𝐞𝐬
≤ 𝟏 →
𝟐.𝟓𝟓𝟎
𝟒. 𝟕𝟔𝟔
+
𝟒𝟓, 𝟓𝟔
𝟏. 𝟏𝟎𝟏
≤ 𝟏 → 𝟎, 𝟓𝟖 ≤ 𝟏 
O perfil atende ao critério de segurança. 
 
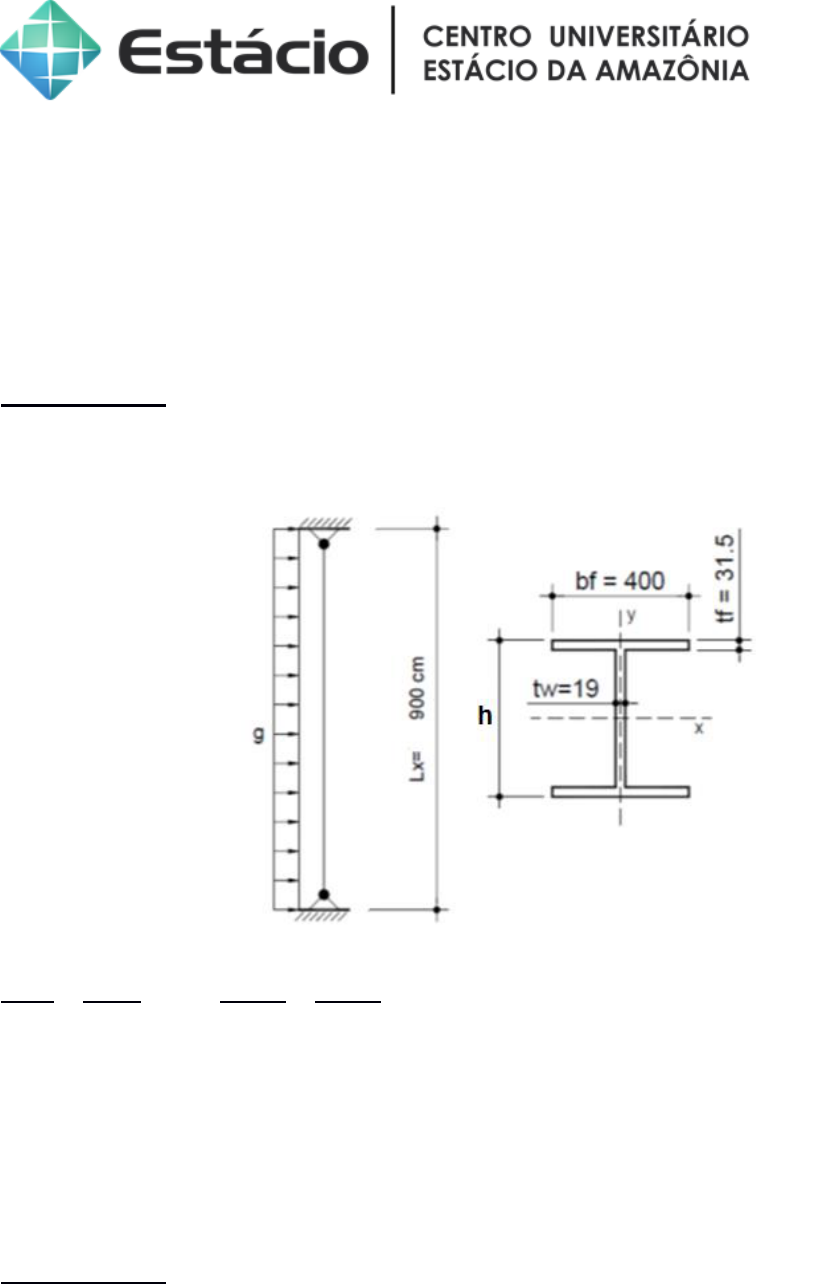
2ª QUESTÃO: 
Uma coluna engastada e livre composta pelo perfil CS 450 x 188, de aço AR 350 (fy = 350 MPa; fu = 450 
MPa; E = 200 GPa), está sujeita a esforços permanentes de cálculo: compressão N = 300 kN e carregamento 
distribuído de 70 kN/m. Verificar a segurança da coluna, sabendo-se que não há contenção lateral contínua e 
que o comprimento da coluna é de 4,00 m. 
Dados do perfil: 
A = 240,1 cm2; Alma (t0 = 9,5 mm; h0 = 405,2 mm); Mesa (tf = 22,4 mm; bf = 450 mm); Eixo x-x (Ix = 
97.865 cm4; Wx = 4.350 cm
3; ix = 20,19 cm; Zx = 4.700 cm
3); Eixo y-y (Iy = 34.023 cm
4; Wy = 1.512 cm
3; Zy 
= 2.277 cm3; iy = 11,9 cm); J = 349 cm
4; Cw = 15.550.692 cm
6; K = 2,00. 
 
 
CCE0182 – ESTRUTURAS DE AÇO – LISTA DE EXERCÍCIOS RESOLVIDOS 02 
ASSUNTO: UNIDADE 4 – DIMENSIONAMENTO E VERIFICAÇÃO DE ELEMENTOS 
ESTRUTURAIS SUBMETIDOS A FLEXÃO: VIGAS – COLUNA. 
 
Página 2 de 3 
 
 
 
RESPOSTA: 
𝐍𝐒𝐝
𝐍𝐑𝐝
+
𝐌𝐒𝐝
𝐌𝐑𝐝
≤ 𝟏 →
𝟑𝟎𝟎
𝟓. 𝟑𝟕𝟑
+
𝟓𝟔𝟎
𝟏. 𝟒𝟓𝟒
≤ 𝟏 → 𝟎,𝟒𝟒 ≤ 𝟏 
O perfil atende ao critério de segurança. 
 
3ª QUESTÃO: 
A coluna bi-apoiada abaixo é composta pelo perfil CS 200 x 29, de aço MR 250 (fy = 250 MPa; fu = 400 
MPa; E = 200 GPa), está sujeita aos carregamentos: compressão Ng = 200 kN e distribuído de q = 2,5 kN/m. 
Verificar a segurança da coluna, sabendo-se que há contenção lateral contínua e que o comprimento da 
coluna é de 6,00 m. Dados: γg = 1,25; γq = 1,4. 
 
 
 
CCE0182 – ESTRUTURAS DE AÇO – LISTA DE EXERCÍCIOS RESOLVIDOS 02 
ASSUNTO: UNIDADE 4 – DIMENSIONAMENTO E VERIFICAÇÃO DE ELEMENTOS 
ESTRUTURAIS SUBMETIDOS A FLEXÃO: VIGAS – COLUNA. 
 
Página 3 de 3 
 
Dados do perfil: Área bruta = 37 cm2; Altura total = 200 mm; Largura da mesa = 200 mm; Espessura da 
mesa = 6,3 mm; Altura da alma = 187 mm; Espessura da alma = 6,3 mm; Raio de Giração X = 8,66 cm; 
Raio de Giração y = 4,76 cm; Momento de Inércia x = 2.778.103 cm4; Momento de Inércia y = 840 cm4; 
Momento de Inércia a Torção = 5 cm4; Módulo elástico x = 278 cm3; Módulo elástico y = 84 cm3; Módulo 
Plástico x = 299 cm3; Constante de empenamento = 7.879.104 cm6. 
 
RESPOSTA: 
𝐍𝐒𝐝
𝐍𝐑𝐝
+
𝐌𝐒𝐝
𝐌𝐑𝐝
≤ 𝟏 →
𝟐𝟓𝟎
𝟑𝟓𝟗, 𝟕𝟐
+
𝟏𝟓, 𝟕𝟓
𝟔𝟎, 𝟖𝟔
≤ 𝟏 → 𝟎, 𝟗𝟓 ≤ 𝟏 
O perfil atende ao critério de segurança. 
 
4ª QUESTÃO: 
A coluna AB abaixo é composta pelo perfil CS 300 x 76, de aço MR 250 (E = 20.000 kN/cm²) e está sujeita 
aos carregamentos indicados. Verificar a segurança da coluna, sabendo-se que não há contenção lateral 
contínua. 
Dados do perfil: Área bruta = 97 cm2; Altura total = 300 mm; Largura da mesa = 300 mm; Espessura da 
mesa = 12,5 mm; Altura da alma = 275 mm; Espessura da alma = 8 mm; Raio de Giração x = 13,20 cm; 
Raio de Giração y = 7,62 cm; Momento de Inércia x = 16.894 cm4; Momento de Inércia y = 5.626 cm4; 
Momento de Inércia a Torção = 44 cm4; Módulo elástico x = 1.126 cm3; Módulo elástico y = 375 cm3; 
Módulo Plástico x = 1.229 cm3. 
 
 
RESPOSTA: 
𝐍𝐒𝐝
𝐍𝐑𝐝
+
𝐌𝐒𝐝
𝐌𝐑𝐝
≤ 𝟏 →
𝟗𝟔𝟎
𝟏. 𝟖𝟐𝟕, 𝟏𝟑
+
𝟏𝟐𝟎
𝟐𝟒𝟗, 𝟗𝟒
≤ 𝟏 → 𝟏, 𝟎𝟎 ≤ 𝟏 
O perfil atende ao critério de segurança.

Mais conteúdos dessa disciplina