Logo Passei Direto
Buscar
Material
páginas com resultados encontrados.
páginas com resultados encontrados.
details

Libere esse material sem enrolação!

Craque NetoCraque Neto

Ao continuar, você aceita os Termos de Uso e Política de Privacidade

details

Libere esse material sem enrolação!

Craque NetoCraque Neto

Ao continuar, você aceita os Termos de Uso e Política de Privacidade

Prévia do material em texto

0,00
0,48
0,08
0,16
0,24
0,32
0,40
0,48
0,48
0,48 0,48
0,48 0,48
0,46
0,50 0,50
0,50
0,50
0,50
0,50
0,50
0,50 0,50 0,50
0,46
0,46
0,46 0,46
0,46
0,48
0,48
0,46
-0,99
B
FACHADA 01
FACHADA 03
FA
C
HA
D
A
 0
4
FA
C
HA
D
A
 0
2
B
A
A
10
10,50
11,00
9,50
N
80
15
0
70
SUPERFÍCIE REGULAR,
CONTÍNUA, FIRME,
ESTÁVEL, ANTIDERRAPANTE
E NÃO TREPIDANTE.
CALÇADA CONFORME
PADRÃO DO
CONDOMÍNIO.
A FAIXA DE PASSEIO
PÚBLICO TERÁ O PERFIL
NATURAL MANTIDO.
MEIO FIO CONFORME
PADRÃO DA NOVACAP
FE
C
HA
M
EN
TO
 L
A
TE
RA
L 
EM
 C
ER
C
A
 V
IV
A
 1
,1
0M
FE
C
HA
M
EN
TO
 L
A
TE
RA
L 
EM
 C
ER
C
A
 V
IV
A
 1
,1
0M
FECHAMENTO LATERAL EM CERCA VIVA 1,10M
i=8,33%
M
UR
ET
A
 T
ÉC
N
IC
A
M
ED
ID
O
R 
D
E 
Á
G
UA
 E
 E
N
ER
G
IA
SE
G
UI
N
D
O
 P
A
D
RÃ
O
 D
O
 C
O
N
D
O
M
ÍN
IO
A L A M E D A T-38
LOTE 05 LOTE 03
LOTE 13
51,9251,91
33,00
7,57 + 25,45
ACESSO DE VEÍCULOS
SOBE i=20%
CAIXA DE RECARGA COM
Ø=135cm E H=160cm
FOSSA SÉPTICA
CONFORME PADRÃO
DO CONDOMÍNIO
SUMIDOURO
CONFORME PADRÃO
DO CONDOMÍNIO
 NÃO HAVERÁ DESNÍVEL
ENTRE AS CALÇADAS
 NÃO HAVERÁ DESNÍVEL
ENTRE AS CALÇADAS
SOBE
i=3%
SOBE
i=3%
300
503
200
200
30
0
30
0
200
200
50
0
30
0
20
0
PROJEÇÃO DE COBERTURA
GARAGEM
 A=36,41m²
VARANDA 01
 A=27,00m²
JANTAR
 A=31,50m²
BWC 01
 A=3,60m²
DECK
 A=70,21m²
PISCINA
 A=35,08m²
COZINHA
 A=14,70m²
LAVABO
 A=2,10m²
SUÍTE 01
 A=16,00m²
VARANDA 02
 A=63,50m²
SUÍTE 02
 A=13,76m²
BWC 02
 A=3,71m²
BWC 03
 A=3,71m²
SUÍTE 03
 A=12,00m²
SUÍTE 04
 A=18,56m²
BWC 04
 A=4,06m²
BWC 05
 A=4,06m²
SUÍTE 04
 A=8,40m²
DEPÓSITO
A=8,40m²
APOIO
A=12,00m²
Á. SERV.
A=3,30m²
20 700 200 20 100 200 100 20
20 900 20 400 20
20 215 300 215 160 40 86 304 20
465 160 485
1320
40020 20
10 66 324
240 20 140
80 400 2020
480
3246610
145 20 235 2020
20 324 66 1020
4008020 20 300
10
160 130 20 174 66 10
20
480 20
140 20 140
20 300 20 250 20 150
130 20
20
18
0
12
0
20
35
0
20
10
0
20
0
10
0
20
24
3826
20
30
0
20
49
10
0
51
20
50
20
0
50
20
40
0
20
80
24
0
80
20
20
30
0
20
20
0
20
30
0
20
15
0
20
39
3
27
35
0
20
30
0
20
90
20
90
12
0
29
0
20
90
20
94
66
12
0
28
0
252002520120180
12
0
16
0
15
0
66
16
4
16
0
13
9
10
0
14
1
16
0
10
0
86
4
40
0
20
47
0
20
39
0
20
23
0
204002037020230
25
0
250
20
23
0
20
28
0
20
57
0
740340500
1580
27
00
25
0
70
0
35
0
71
0
71
0
13
00
30
0
20
35
0
20
20
13
00
500
70
0
270
M
M
M
M
M
M
M M
M
M
M
G
G
G G
G
G G
PC
PC PC
PC PC
PC PC
PC
PAPA
PA
PA
PA
PA
PA
PA
PA PA
PNPN
PNPN
PN
PN
PN
PN
PN
PN
PN
PN
PN
PN
PN PN
PN PN
14
0
210
39 100 60 100 41
20
0
10
0
P01
P01
P01
P01 P01
P01
P02
P02
P03
P03
P03
P03
P03
P03P04
J1
J1 J1
J1 J1
P05
J3
J2
J4
J5
J6
J6
J6
J6
J7
20
10
0
100
100
10
0
100
16
5
16
5
100
ACESSO VEÍCULOS
PISO EM PLACAS DE CONCRETO
PISO EM PLACAS DE CONCRETO
ACESSO PEDESTRES
98
15
98
15
98
15
98
15
80
17
592
53
2
36
5
15
90
15
90
15
90
15
90
15
90 472
497
612
597
622
ÁREA PERMEÁVEL - GRAMA
A: 1.262,64 m²
200
21
46
9402020
21
46
20
26
993
41
26
56
4
50
0
18
8
20
0
13
0
20
0
13
5
600
635
633
SOBE
i=9%
500
CAST IRONSINKSWHITEHAVENK-6427
10
10,50
11,00
9,50
N
80
15
0
70
SUPERFÍCIE REGULAR,
CONTÍNUA, FIRME,
ESTÁVEL, ANTIDERRAPANTE
E NÃO TREPIDANTE.
CALÇADA CONFORME
PADRÃO DO
CONDOMÍNIO.
A FAIXA DE PASSEIO
PÚBLICO TERÁ O PERFIL
NATURAL MANTIDO.
MEIO FIO CONFORME
PADRÃO DA NOVACAP
FE
C
HA
M
EN
TO
 L
A
TE
RA
L 
EM
 C
ER
C
A
 V
IV
A
 1
,1
0M
FE
C
HA
M
EN
TO
 L
A
TE
RA
L 
EM
 C
ER
C
A
 V
IV
A
 1
,1
0M
FECHAMENTO LATERAL EM CERCA VIVA 1,10M
i=8,33%
M
UR
ET
A
 T
ÉC
N
IC
A
M
ED
ID
O
R 
D
E 
Á
G
UA
 E
 E
N
ER
G
IA
SE
G
UI
N
D
O
 P
A
D
RÃ
O
 D
O
 C
O
N
D
O
M
ÍN
IO
A L A M E D A T-38
LOTE 05 LOTE 03
LOTE 13
51,9251,91
33,00
7,57 + 25,45
ACESSO DE VEÍCULOS
SOBE i=20%
CAIXA DE RECARGA COM
Ø=135cm E H=160cm
FOSSA SÉPTICA
CONFORME PADRÃO
DO CONDOMÍNIO
SUMIDOURO
CONFORME PADRÃO
DO CONDOMÍNIO
 NÃO HAVERÁ DESNÍVEL
ENTRE AS CALÇADAS
 NÃO HAVERÁ DESNÍVEL
ENTRE AS CALÇADAS
SOBE
i=3%
SOBE
i=3%
300
503
200
200
30
0
30
0
200
200
50
0
30
0
20
0
PROJEÇÃO DE COBERTURA
GARAGEM
 A=36,41m²
VARANDA 01
 A=27,00m²
JANTAR
 A=31,50m²
BWC 01
 A=3,60m²
DECK
 A=70,21m²
PISCINA
 A=35,08m²
COZINHA
 A=14,70m²
LAVABO
 A=2,10m²
SUÍTE 01
 A=16,00m²
VARANDA 02
 A=63,50m²
SUÍTE 02
 A=13,76m²
BWC 02
 A=3,71m²
BWC 03
 A=3,71m²
SUÍTE 03
 A=12,00m²
SUÍTE 04
 A=18,56m²
BWC 04
 A=4,06m²
BWC 05
 A=4,06m²
SUÍTE 04
 A=8,40m²
DEPÓSITO
A=8,40m²
APOIO
A=12,00m²
Á. SERV.
A=3,30m²
06
07
20
19
05
06
07
08
01
A L A M E D A T
-35
43
01
15
14
13
A L A M
 E D A T-38
A L. T-38
A=1.541,90m
²
A=1.541,90m²
A=1.647,99m²
A=1.544,40m²
A=
2.3
81
,53
m²
A=
2.0
91
,41
m²
A=
2.4
92
,71
m²
R=160,00
D=31,04
R=160,00
53
,7
1
D=30,41
D=9,89
R=6,00
60,00
R=160,00
D=36,68D=9,89
R=6,00
53
,7
1
D=38,00
D=25,00
R=1.074,00
D=26,40
60,00
D=25,00
R=1.074,00
D=26,40
R=1.134,00
60,00
D=19,07
R=1.074,00
D=26,73
R=1.134,00
60,00
D=19,07
R=1.074,00
54,05
D=25,00
60,00
D=130,578mD=94,472m
R=336,000m 137,779m
Tg=32,991m
54,05
Tg=47,550m
AC
=16°6'35''
D=9,36
R=6,00
D=9,36
R=6,00
132,000m
D=65,961m
Tg=34,938mAC=24°3'9'' R=164,00m
R=1.068,00m
AC=3°32'19''
41,13
35,00
73,82
81,10
D=81,48
14,31
27,97
23,24
42,96
36,00
D=
10
,9
4
R=
6,
00
D
=3
9,
22
R=
30
,00
D=68,847m
R=164,000m
11,639m
111,562m
A
Z=248°25'43" - 996,707m
CANTEIRO
CANTEIRO
CANTEIRO
6,
73
0m
6,00
6,00
R=25,60
13
,6
3
6,
00
7,
16
6,
47
13,75
7,20
6,56
7,00 5,50
12,50
3,
00
12,00
6,00
3,
00
3,006,00
3,00
12,00
12,00
3,00
6,00
12,003,00
3,006,0014,00
5,00
R=1.062,00
R=1.062,00
R=1.062,00
D=6,72
R=5,0007
08
09
41
D=31,85
D=27,47
D=27,35
R=1.062,00
10
D=31,98
D
=1
1,
31
R=
6,
00
66,72
68,37
64,05
59,00
27,00
27,00
35,00
25,13
47,41
A=1.789,27m
²
A=1.662,75m
²
A=1.932,07m
²
A=2.276,79m
²
30,60
30,60
33,66
30,60
30,60
30,00
30,00
30,00
30,00
33,00
61,22
55,19
49,16
42,53
51,92
94,45
52,91
52,91
52,91
7,57
D=25,45
R=328,00
84,69
72,05
D=30,24
R=328,00
D=30,73
R=328,00
A=1
.746
,27m
²
11
A=1
.565
,36m
²
12
A=1
.512
,93m
²
13
03
02
06
A=1
.587
,15m
²
05
A=1
.587
,15m
²
04
A=1
.737
,51m
²
04
38,00
D=32,60
R=1.074,00
D=7,58R=6,00
A=1.541,90m
²
D=25,00
R=1.074,00
60,00
D=146,596m
R=1.068,000m
AC=7º51'52"
287,943m
D=15,863m
R=12,000m
AC=75º44'19"
Tg=9,331m
AC=19º11'2"
Tg=27,715m
3,006,00
12,00
3,00
3,006,00
12,00
3,00
A L A M
 E D A T-39
6,00
35,073,00
26,07
01
D=29,12
R=328,00
24,98
46,85
D=7,93R=6,00
D=
7,
61
R=
6,
00
A=2
.694
,04m
²
A=2
.358
,47m
²
A=1
.953
,61m
²Ø135
MANILHA DE CONCRETO PRÉ MOLDADO
COM Ø=120cm E COM FUROS DE Ø=10cm
FUNDOS E LATERAIS DO POÇO COM BRITA
PARA FACILITAR NA ABSORÇÃO DO SOLO
EXTRAVASADOR
TERRENO NATURAL TAMPA METÁLICA PARA INSPENÇÃO DO POÇO
21
3
120
01
02
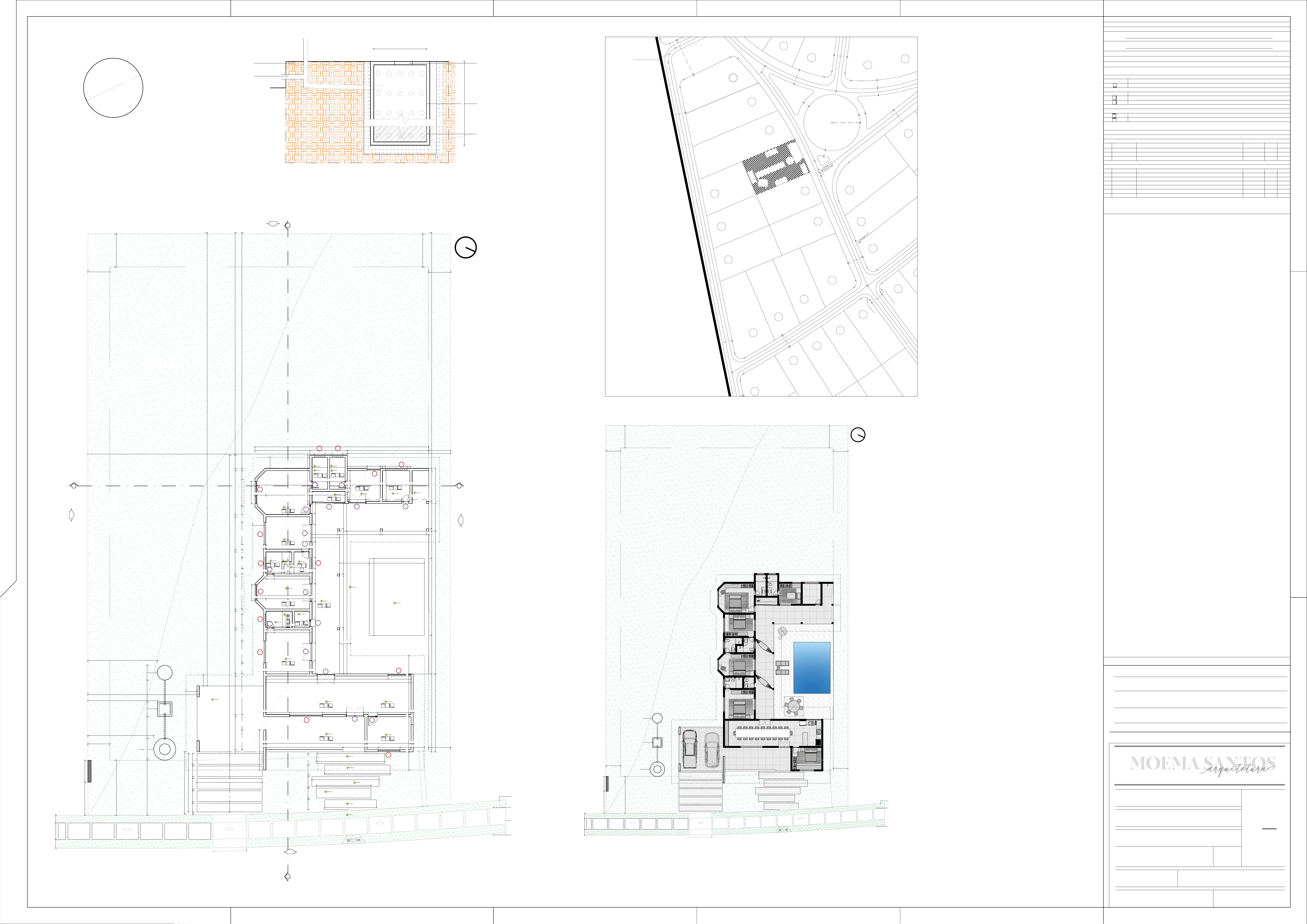
PLANTA BAIXA
PLANTA BAIXA
ESC.: 1/100
AGOSTO/2021
OBS.: CONFERIR MEDIDAS NO LOCAL DA OBRA.
EMPREENDEDORA
PROJETO - MOEMA SANTOS SOARES - ARQUITETA - CAU N° A158041-8
APROVAÇÃO:
CONSTRUÇÃO 
PROPRIETÁRIO:
ASSUNTO:
ENDEREÇO:
CONTEÚDO: ESCALA:
ARQUITETO:
DESENHO: DATA:
PRANCHA:
INDICADA
MOEMA SANTOS SOARES
PROJETO ARQUITETÔNICO DE RESIDÊNCIA UNIFAMILIAR
MOEMA SANTOS
PROPRIETÁRIO - LUCÍLIA BONIFÁCIO DA SILVA - CPF: 633.978.201-97
LUCÍLIA BONIFÁCIO DA SILVA - CPF: 633.978.201-97
ALAMEDA T-38 - QUADRA 41 LOTE 04 - GUAPÓ - GOIÁS.
TALISMÃ CONDOMÍNIO DE SÍTIOS DE LAZER
(86) 9 9963 0444 moemasantosarq@gmail.com
PLANTA DE LAYOUT
ESC.: 1/150
PLANTA DE LAYOUT
QUADRO DE ESQUADRIAS
PORTAS
TAMANHO DESCRIÇÃO TIPO QUANT.
JANELAS E BÁSCULA
TAMANHO DESCRIÇÃO TIPO QUANT.
J01 1.00x0.60/ 1.50 Janela em perfil de alumínio preto e vidro transparente - linha croma minimalista 01
J02
J03
01
J05
J06P01 0.66x2.10m abrir 01
P02 0.86x2.10m 03
P03 1.60x2.10m 01
P04 correr 01
01
abrir
3.00x2.10m
1.40x1.50/ 0.60 02
2.00x1.50/ 0.60 02
maxim-ar
abrir
2.00x0.60/ 1.50
1.20x1.50/ 0.60
J07 3.00x1.50/ 0.60 01
Porta em madeira de lei com acabamento em verniz fosco
FOLHAS
FOLHAS
1 folha
J04
1 folhaJanela em perfil de alumínio preto e vidro transparente - linha croma minimalista
Janela em perfil de alumínio preto e vidro transparente - linha croma minimalista
Janela em perfil de alumínio preto e vidro transparente - linha croma minimalista
Janela em perfil de alumínio preto e vidro transparente - linha croma minimalista
Janela em perfil de alumínio preto e vidro transparente - linha croma minimalista
maxim-ar2.10x0.60/ 1.50 1 folhaJanela em perfil de alumínio preto e vidro transparente - linha croma minimalista
1 folha
1 folha
1 folha
1 folha
maxim-ar
maxim-ar
maxim-ar
maxim-ar
maxim-ar
1 folha
2 folhas
2 folhas
3 folhas
01
OBS: A medida das portas indicada no quadro é referente ao vão total (abertura + forra).
 Conferir o tamanho da folha de cada porta no detalhamento de esquadrias.
Conferir detalhe de peitoril das janelas e basculantes no detalhamentode esquadrias.
 Prevê aletas para trilhos embutidos no piso.
Porta em madeira de lei com acabamento em verniz fosco
Porta em madeira de lei com acabamento em verniz fosco
Porta em madeira de lei com acabamento em verniz fosco
PISO
ACABAMENTONOME
NOME ACABAMENTO
PAREDE COM REVESTIMENTO CERÂMICO
PAREDE
NOME ACABAMENTO
TETO
ESPECIFICAÇÕES
PINTURA ACRILICA FOSCAPA
PC
PORCELANATO NATURALPN
GESSO ACARTONADOG
MADEIRAM
ÁREA DO TERRENO:
ÁREA CONSTRUÍDA FINAL:
ÍNDICE DE APROVEITAMENTO:
ÁREA DE PISO FINAL:
TAXA DE OCUPAÇÃO:
QUADRO DE ÁREAS
TÉRREO
1737,59m²
338,92m²
0,1950
TÉRREO 314,11m²
19,50%
ÁREA PERMEÁVEL: 1235.22m² (71,08%)
PLANTA DE SITUAÇÃO
ESC.: 1/1000
ARQUITETA - CAU N° A158041-8
ÁREAS:
ÁREA DO TERRENO: 1737,59m²
ÁREA CONSTRUÍDA: 338,92m²
ÁREA PERMEÁVEL: 1235,22m²
OBSERVAÇÕES:
SERÁ PERMITIDO O FECHAMENTO DO PERÍMETRO DO LOTE DAS LATERAIS, SOMENTE POR CERCA VIVA
COM ESPÉCIES ARBUSTIVAS E TREPADEIRAS, INCLUSIVE AS FRUTÍFERAS, DE ALTURA MÍNIMA DE 1.80 E MÁXIMA
DE 2.20, E PARA A BASE DA CERCA VIVA DEVERÁ SER UTILIZADO MADEIRAMENTO E TELA RESPEITANDO AS
MEDIDAS (MADEIRA DE NO MÍNIMO 10 CM DE DIÂMETRO E NO MÁXIMO 25 CM). NÃO PODENDO SER
UTILIZADO MADEIRA INFERIOR AO PADRÃO DE EUCALIPTO TRATADO.
A EXECUÇÃO DE TUTORES PARA CERCA VIVA PODE SER FEITA LIMITANDO A VEDAÇÃO EM 20% DA
LATERAL UTILIZADA E ALTURA MÁXIMA DE 2,2 METROS. FICA PROIBIDA A OBSTRUÇÃO DE TODA A LATERAL E
FUNDOS COM ELEMENTOS COMO TRELIÇA, ALAMBRADO ACIMA DE 1 METRO E AFINS. CASO OS TUTORES
NECESSITEM DE FUNDAÇÃO, FICA ESTABELECIDO UM RECUO DE 2 METROS DA DIVISA. NOS CASOS SEM
FUNDAÇÃO PODERÁ SER NA DIVISA.
TALUDES DE ACERTOS DE MOVIMENTAÇÃO DE TERRA, DE ATERROS OU CORTES DEVEM RESPEITAR A
DISTÂNCIA MÍNIMA DA DIVISA DE 1,00METRO, COM A ADOÇÃO DA PROPORÇÃO MÍNIMA DE 1:1,5
( ALTURA: LARGURA)
DETALHE POÇO DE RECARGA - PLANTA BAIXA
ESC.: 1/25
DETALHE POÇO DE RECARGA - CORTE
ESC.: 1/25
AutoCAD SHX Text
74°54'11"
AutoCAD SHX Text
74°54'11"
AutoCAD SHX Text
105°5'49"
10
10,50
11,00
9,50
N
80
15
0
70
SUPERFÍCIE REGULAR,
CONTÍNUA, FIRME,
ESTÁVEL, ANTIDERRAPANTE
E NÃO TREPIDANTE.
CALÇADA CONFORME
PADRÃO DO
CONDOMÍNIO.
A FAIXA DE PASSEIO
PÚBLICO TERÁ O PERFIL
NATURAL MANTIDO.
MEIO FIO CONFORME
PADRÃO DA NOVACAP
FE
C
HA
M
EN
TO
 L
A
TE
RA
L 
EM
 C
ER
C
A
 V
IV
A
 1
,1
0M
FE
C
HA
M
EN
TO
 L
A
TE
RA
L 
EM
 C
ER
C
A
 V
IV
A
 1
,1
0M
FECHAMENTO LATERAL EM CERCA VIVA 1,10M
i=8,33%
M
UR
ET
A
 T
ÉC
N
IC
A
M
ED
ID
O
R 
D
E 
Á
G
UA
 E
 E
N
ER
G
IA
SE
G
UI
N
D
O
 P
A
D
RÃ
O
 D
O
 C
O
N
D
O
M
ÍN
IO
A L A M E D A T-38
LOTE 05 LOTE 03
LOTE 13
51,9251,91
33,00
7,57 + 25,45
ACESSO DE VEÍCULOS
SOBE i=20%
CAIXA DE RECARGA COM
Ø=135cm E H=160cm
FOSSA SÉPTICA
CONFORME PADRÃO
DO CONDOMÍNIO
SUMIDOURO
CONFORME PADRÃO
DO CONDOMÍNIO
 NÃO HAVERÁ DESNÍVEL
ENTRE AS CALÇADAS
 NÃO HAVERÁ DESNÍVEL
ENTRE AS CALÇADAS
SOBE
i=3%
SOBE
i=3%
300
503
200
200
30
0
30
0
200
200
50
0
30
0
20
0
15
0
14
0
10
FA
IX
A
 D
E
SE
RV
IÇ
O
FA
IX
A
 D
E
A
C
ES
SO
FA
IX
A
LI
V
RE
7
14
3
12
0
15
30
0
15
TELHA
 C
ERÂ
M
IC
A
IN
C
L.35%
TELHA CERÂMICA
INCL.35%
TELHA CERÂMICA
INCL.35%
TE
LH
A
 C
ER
Â
M
IC
A
IN
C
L.
35
%
TE
LH
A
 C
ER
Â
M
IC
A
IN
C
L.
35
%
TE
LH
A
 C
ER
Â
M
IC
A
IN
C
L.
35
%
TELHA CERÂMICA
INCL.35%
CAIXA D'ÁGUA
2000L
CAIXA D'ÁGUA
2000L
RUFO
TE
LH
A
 C
ER
Â
M
IC
A
IN
C
L.
35
%
TE
LH
A
 C
ER
Â
M
IC
A
IN
C
L.
35
%
TE
LH
A
 C
ER
Â
M
IC
A
IN
C
L.
35
%
TE
LH
A
 C
ER
Â
M
IC
A
IN
C
L.
35
%
TE
LH
A
 C
ER
Â
M
IC
A
IN
C
L.
35
%
1
1615
14
13
12
11
10
9
8
7
6
5
4
3
2
B
FACHADA 01
FACHADA 03
FA
C
HA
D
A
 0
4
FA
C
HA
D
A
 0
2
B
A
A
2167
10
40
10
35
35
0
20
40
0
840340520
19
80
86
5
A L A M
 E D A T-38
11
7
83
28
8
85
45
5
83
24
1
80
54
9
86
5
28
45
80
1780
77
0
40
0
10
0
100
810
1020
16
5
100
16
5
100
SUÍTE 04
0,48
BWC
04
0,48
BWC
05 SUÍTE 05 DEPÓSITO
0,48
CHUVEIRÃO
CAIXA D'ÁGUA 2000L
0,500,500,50
TELHADO METÁLICO
i=6%
TELHADO CERÂMICO
i=35%
TELHADO CERÂMICO
i=35%
31
4
26
2
55
26
2 31
7
FORRO RIPADO COM JUNTA SECA
SEGUINDO A INCLINAÇÃO DA COBERTURA
i=35%
39
9
54
0
16
0 21
0
26
0 32
4
ESQUADRIAS EM ALUMÍNIO BRANCO
E VIDRO TRANSPARENTE
LINHA MINIMALISTADETALHE 01
LINHA NATURAL DO TERRENO
58
11
3
FORRO FORRO
BWC 01SUÍTE 01 SUÍTE 02 SUÍTE 03 SUÍTE 04
BWC
03
BWC
02
0,48
JANTARVARANDA
0,50 0,480,50 0,50 0,50 0,500,46 0,46
TELHADO CERÂMICO
i=35%
FORRO RIPADO COM JUNTA SECA
SEGUINDO A INCLINAÇÃO DA COBERTURA
i=35%
ESQUADRIAS EM ALUMÍNIO BRANCO
E VIDRO TRANSPARENTE
LINHA MINIMALISTA40
38
7
53
8
64
0
26
2
26
432
2
21
2
11
0
TELHADO CERÂMICO
i=35%
PAREDE EM PEDRA DE FOGO
COM JUNTA SECA
LINHA NATURAL DO TERRENO
10
965
PAREDE EM PEDRA DE FOGO
COM JUNTA SECA
PAREDE REVESTIDA EM TIJOLINHO
A DEFINIR JUNTO À ARQUITETA
TELHADO CERÂMICO
i=35%
ESQUADRIAS EM ALUMÍNIO BRANCO
E VIDRO TRANSPARENTE
LINHA MINIMALISTA
MOLDURA DAS ESQUADRIAS 5cm
EM COR A DEFINIR JUNTO À ARQUITETA
ESQUADRIAS EM MADEIRA
DE LEI
ACABAMENTO EM VERNIZ
FOSCO
TELHADO CERÂMICO
i=35%
PAREDE EM PEDRA DE FOGO
COM JUNTA SECA
VOLUME CAIXA D'ÁGUA
REVESTIDO EM TIJOLINHO
A DEFINIR JUNTO À ARQUITETA
ESQUADRIAS EM ALUMÍNIO BRANCO
E VIDRO TRANSPARENTE
LINHA MINIMALISTA
MOLDURA DAS ESQUADRIAS 5cm
EM COR A DEFINIR JUNTO À ARQUITETA
ESQUADRIAS EM MADEIRA
DE LEI
ACABAMENTO EM VERNIZ
FOSCO
PAREDE REVESTIDA EM TIJOLINHO
A DEFINIR JUNTO À ARQUITETA TELHADO CERÂMICO
i=35%
VOLUME CAIXA D'ÁGUA
REVESTIDO EM TIJOLINHO
A DEFINIR JUNTO À ARQUITETA
PORTA DE ACESSO À CAIXA D'ÁGUA
EM ALUMÍNIO FRISADO
MOLDURA DAS ESQUADRIAS 5cm
EM COR A DEFINIR JUNTO À ARQUITETA
ESQUADRIAS EM ALUMÍNIO BRANCO
E VIDRO TRANSPARENTE
LINHA MINIMALISTA
PAREDE EM PEDRA DE FOGO
COM JUNTA SECA
PAREDE REVESTIDA EM TIJOLINHO
A DEFINIR JUNTO À ARQUITETA
VOLUME CAIXA D'ÁGUA
REVESTIDO EM TIJOLINHO
A DEFINIR JUNTO À ARQUITETA
TELHADO CERÂMICO
i=35%
MOLDURA DAS ESQUADRIAS 5cm
EM COR A DEFINIR JUNTO À ARQUITETA
ESQUADRIAS EM ALUMÍNIO BRANCO
E VIDRO TRANSPARENTE
LINHA MINIMALISTA
TELHADO CERÂMICO
i=35%
FUNDO EM CONCRETO ARMADO
E IMPERMEABILIZADO
PAREDE EM ALVENARIA
COM BLOCOS MACIÇOS E
REBOCO IMPERMEABILIZADO
BRITA ZERO
AREIA FINA
MANILHA EM CONCRETO
FURADO Ø=100cm
15 130 15
160 50 100 50200
AA
50
50
50
50
30
70
1010
15
0
15
160 200
LAJE PRÉ-MOLDADA
MANILHA EM
CONCRETO FURADO
Ø=100cm
AREIA FINA
BRITA ZERO
AREIA FINA
17
5
31
0 02
02
PLANTA BAIXA
PLANTA COBERTURA
ESC.: 1/100
AGOSTO/2021
OBS.: CONFERIR MEDIDAS NO LOCAL DA OBRA.
EMPREENDEDORA
PROJETO - MOEMA SANTOS SOARES - ARQUITETA - CAU N° A158041-8
APROVAÇÃO:
CONSTRUÇÃO 
PROPRIETÁRIO:
ASSUNTO:
ENDEREÇO:
CONTEÚDO: ESCALA:
ARQUITETO:
DESENHO: DATA:
PRANCHA:
INDICADA
MOEMA SANTOS SOARES
PROJETO ARQUITETÔNICO DE RESIDÊNCIAUNIFAMILIAR
MOEMA SANTOS
PROPRIETÁRIO - LUCÍLIA BONIFÁCIO DA SILVA - CPF: 633.978.201-97
LUCÍLIA BONIFÁCIO DA SILVA - CPF: 633.978.201-97
ALAMEDA T-38 - QUADRA 41 LOTE 04 - GUAPÓ - GOIÁS.
TALISMÃ CONDOMÍNIO DE SÍTIOS DE LAZER
(86) 9 9963 0444 moemasantosarq@gmail.com
PLANTA DE LAYOUT
QUADRO DE ESQUADRIAS
PORTAS
TAMANHO DESCRIÇÃO TIPO QUANT.
JANELAS E BÁSCULA
TAMANHO DESCRIÇÃO TIPO QUANT.
J01 1.00x0.60/ 1.50 Janela em perfil de alumínio preto e vidro transparente - linha croma minimalista 01
J02
J03
01
J05
J06
P01 0.66x2.10m abrir 01
P02 0.86x2.10m 03
P03 1.60x2.10m 01
P04 correr 01
01
abrir
3.00x2.10m
1.40x1.50/ 0.60 02
2.00x1.50/ 0.60 02
maxim-ar
abrir
2.00x0.60/ 1.50
1.20x1.50/ 0.60
J07 3.00x1.50/ 0.60 01
Porta em madeira de lei com acabamento em verniz fosco
FOLHAS
FOLHAS
1 folha
J04
1 folhaJanela em perfil de alumínio preto e vidro transparente - linha croma minimalista
Janela em perfil de alumínio preto e vidro transparente - linha croma minimalista
Janela em perfil de alumínio preto e vidro transparente - linha croma minimalista
Janela em perfil de alumínio preto e vidro transparente - linha croma minimalista
Janela em perfil de alumínio preto e vidro transparente - linha croma minimalista
maxim-ar2.10x0.60/ 1.50 1 folhaJanela em perfil de alumínio preto e vidro transparente - linha croma minimalista
1 folha
1 folha
1 folha
1 folha
maxim-ar
maxim-ar
maxim-ar
maxim-ar
maxim-ar
1 folha
2 folhas
2 folhas
3 folhas
01
OBS: A medida das portas indicada no quadro é referente ao vão total (abertura + forra).
 Conferir o tamanho da folha de cada porta no detalhamento de esquadrias.
Conferir detalhe de peitoril das janelas e basculantes no detalhamentode esquadrias.
 Prevê aletas para trilhos embutidos no piso.
Porta em madeira de lei com acabamento em verniz fosco
Porta em madeira de lei com acabamento em verniz fosco
Porta em madeira de lei com acabamento em verniz fosco
PISO
ACABAMENTONOME
NOME ACABAMENTO
PAREDE COM REVESTIMENTO CERÂMICO
PAREDE
NOME ACABAMENTO
TETO
ESPECIFICAÇÕES
PINTURA ACRILICA FOSCAPA
PC
PORCELANATO NATURALPN
GESSO ACARTONADOG
MADEIRAM
ÁREA DO TERRENO:
ÁREA CONSTRUÍDA FINAL:
ÍNDICE DE APROVEITAMENTO:
ÁREA DE PISO FINAL:
TAXA DE OCUPAÇÃO:
QUADRO DE ÁREAS
TÉRREO
1737,59m²
338,92m²
0,1950
TÉRREO 314,11m²
19,50%
ÁREA PERMEÁVEL: 1235.22m² (71,08%)
CORTE AA
ESC.: 1/100
ARQUITETA - CAU N° A158041-8
ÁREAS:
ÁREA DO TERRENO: 1737,59m²
ÁREA CONSTRUÍDA: 338,92m²
ÁREA PERMEÁVEL: 1235,22m²
CORTE BB
ESC.: 1/100
FACHADA 01
ESC.: 1/100
FACHADA 02
ESC.: 1/100
FACHADA 03
ESC.: 1/100
FACHADA 04
ESC.: 1/100
OBSERVAÇÕES:
SERÁ PERMITIDO O FECHAMENTO DO PERÍMETRO DO LOTE DAS LATERAIS, SOMENTE POR CERCA VIVA
COM ESPÉCIES ARBUSTIVAS E TREPADEIRAS, INCLUSIVE AS FRUTÍFERAS, DE ALTURA MÍNIMA DE 1.80 E MÁXIMA
DE 2.20, E PARA A BASE DA CERCA VIVA DEVERÁ SER UTILIZADO MADEIRAMENTO E TELA RESPEITANDO AS
MEDIDAS (MADEIRA DE NO MÍNIMO 10 CM DE DIÂMETRO E NO MÁXIMO 25 CM). NÃO PODENDO SER
UTILIZADO MADEIRA INFERIOR AO PADRÃO DE EUCALIPTO TRATADO.
A EXECUÇÃO DE TUTORES PARA CERCA VIVA PODE SER FEITA LIMITANDO A VEDAÇÃO EM 20% DA
LATERAL UTILIZADA E ALTURA MÁXIMA DE 2,2 METROS. FICA PROIBIDA A OBSTRUÇÃO DE TODA A LATERAL E
FUNDOS COM ELEMENTOS COMO TRELIÇA, ALAMBRADO ACIMA DE 1 METRO E AFINS. CASO OS TUTORES
NECESSITEM DE FUNDAÇÃO, FICA ESTABELECIDO UM RECUO DE 2 METROS DA DIVISA. NOS CASOS SEM
FUNDAÇÃO PODERÁ SER NA DIVISA.
TALUDES DE ACERTOS DE MOVIMENTAÇÃO DE TERRA, DE ATERROS OU CORTES DEVEM RESPEITAR A
DISTÂNCIA MÍNIMA DA DIVISA DE 1,00METRO, COM A ADOÇÃO DA PROPORÇÃO MÍNIMA DE 1:1,5
( ALTURA: LARGURA)
	Sheets and Views
	Prefeitura - Lucília Bonifácio (1)-Prefeitura 01
	Prefeitura - Lucília Bonifácio (1)-Prefeitura 01 (2)

Mais conteúdos dessa disciplina