Logo Passei Direto
Buscar

Ferramentas de estudo

Questões resolvidas

1 - No dimensionamento dos componentes da escada, a relação entre os degraus e os espelhos interfere diretamente na acessibilidade e no conforto por parte dos usuários. Considerando escada de lance único, onde a altura entre os dois pisos a ser vencida é de 2,76 m e o piso de 0,27m. De acordo com a fórmula de Blondel, ache quantos degraus ela terá, qual o espelho escolhido (considere até 3 casas decimais) e o seu comprimento respectivamente.

( ) a) 17; 0,16m e 4,59m.
( ) b) 15; 0,18m e 4,05m.
( ) c) 17; 0,162m e 4,32m.
( ) d) 15; 0,184m e 3,78m.
( ) e) 16; 0,172m e 4,32m.

3 - As escadas são elementos essenciais para o funcionamento dos edifícios. Além da questão do funcionamento, também consistem em importantes elementos de composição estética. Analise a imagem do detalhe de uma escada em planta. Os pisos da escada têm a dimensão de 0,27m, os espelhos de 0,175m e o patamar de 2,40m x 1,20m. As cotas de nível do patamar e do 2º pavimento correspondem a:

( ) a) 2,41m; 3,40m.
( ) b) 2,95m; 4,70m.
( ) c) 2,10m; 3,85m.
( ) d) 1,92m; 3,67m.
( ) e) 1,75m; 3,50m.

Material
páginas com resultados encontrados.
páginas com resultados encontrados.
details

Libere esse material sem enrolação!

Craque NetoCraque Neto

Ao continuar, você aceita os Termos de Uso e Política de Privacidade

Questões resolvidas

1 - No dimensionamento dos componentes da escada, a relação entre os degraus e os espelhos interfere diretamente na acessibilidade e no conforto por parte dos usuários. Considerando escada de lance único, onde a altura entre os dois pisos a ser vencida é de 2,76 m e o piso de 0,27m. De acordo com a fórmula de Blondel, ache quantos degraus ela terá, qual o espelho escolhido (considere até 3 casas decimais) e o seu comprimento respectivamente.

( ) a) 17; 0,16m e 4,59m.
( ) b) 15; 0,18m e 4,05m.
( ) c) 17; 0,162m e 4,32m.
( ) d) 15; 0,184m e 3,78m.
( ) e) 16; 0,172m e 4,32m.

3 - As escadas são elementos essenciais para o funcionamento dos edifícios. Além da questão do funcionamento, também consistem em importantes elementos de composição estética. Analise a imagem do detalhe de uma escada em planta. Os pisos da escada têm a dimensão de 0,27m, os espelhos de 0,175m e o patamar de 2,40m x 1,20m. As cotas de nível do patamar e do 2º pavimento correspondem a:

( ) a) 2,41m; 3,40m.
( ) b) 2,95m; 4,70m.
( ) c) 2,10m; 3,85m.
( ) d) 1,92m; 3,67m.
( ) e) 1,75m; 3,50m.

Prévia do material em texto

UNIVERSO 
ENGENHARIA CIVIL 
Desenho projetivo (N151) - 1ºsem2024 Profª Lúcia Rosas 
1 - No dimensionamento dos componentes da escada, a relação entre os degraus e os espelhos interfere 
diretamente na acessibilidade e no conforto por parte dos usuários. Considerando escada de lance único, onde 
a altura entre os dois pisos a ser vencida é de 2,76 m e o piso de 0,27m. 
De acordo com a fórmula de Blondel, ache quantos degraus ela terá, qual o espelho escolhido (considere até 
3 casas decimais) e o seu comprimento respectivamente. 
 
( ) a) 17; 0,16m e 4,59m. 
( ) b) 15; 0,18m e 4,05m. 
( ) c) 17; 0,162m e 4,32m. 
( ) d) 15; 0,184m e 3,78m. 
( ) e) 16; 0,172m e 4,32m. 
 
 
2 - Na elaboração do projeto de uma escada para uma edificação residencial, conforme desenho esquemático 
a seguir, foi utilizada a fórmula de Blondel, comumente empregada para dimensionamento de escadas na 
construção civil. 
A partir dessas informações e da imagem, considerar que o pé direito é 2,78m, a laje da edificação tenha 10 
cm de espessura e a profundidade do piso da escada é 0,28m. 
Responda à questão: 
Quantos espelhos? qual a altura do espelho e qual o comprimento do primeiro lance da escada? 
 
a) 15; 0,192m; 1,68m 
b) 16; 0,17m; 1,68m 
c) 15; 0,18m; 1,96m 
d) 16; 0,18m; 1,68m 
e) 16; 0,17m; 1,96m 
 
 
 
 
 
 
 
 
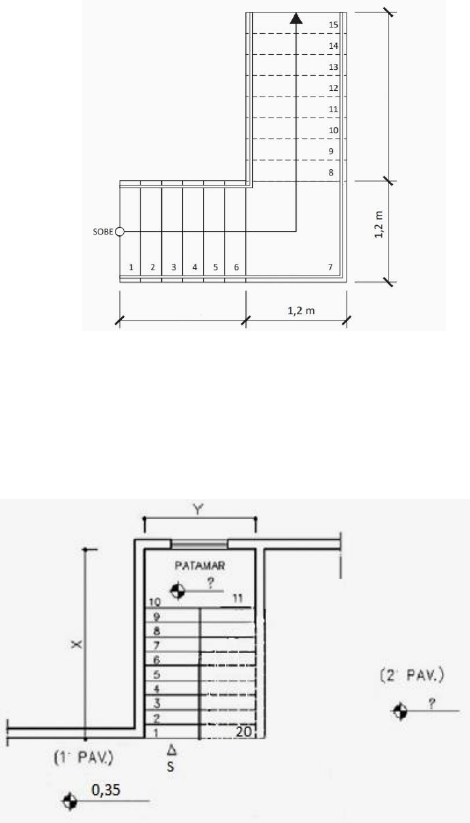
3 - As escadas são elementos essenciais para o funcionamento dos edifícios. Além da questão do 
funcionamento, também consistem em importantes elementos de composição estética. Analise a imagem do 
detalhe de uma escada em planta. Os pisos da escada têm a dimensão de 0,27m, os espelhos de 0,175m e o 
patamar de 2,40m x 1,20m. 
As cotas de nível do patamar e do 2º pavimento correspondem a: 
 
( ) a) 2,41m; 3,40m. 
( ) b) 2,95m; 4,70m. 
( ) c) 2,10m; 3,85m. 
( ) d) 1,92m; 3,67m. 
( ) e) 1,75m; 3,50m.